1 Bridge Street, Leatherhead, Surrey, KT22 8BL
£200,000+
Commercial
Key Features
- An opportunity to acquire a freehold former bank measuring circa 2,000 sq ft
- Just off the busy High Street in the heart of Leatherhead town centre.
- Ideal opportunity for owner occupiers, investors & developers
Part of the
20 June 2024
auction
Trent Bridge Cricket Ground
at
2.30PM
An opportunity to acquire a freehold former bank measuring circa 2,000 sq ft. Just off the busy High Street in the heart of Leatherhead town centre.
- Freehold former town centre bank
- Situated in the heart of Leatherhead town centre
- Nearby occupiers: Waitrose, Costa, Greggs, Subway & Argos
- On the corner of Bridge Street & High Street
- A short walk from Leatherhead Train Station
- A 4 minute drive from J9 of the M25
- 14 miles South West of London City Centre
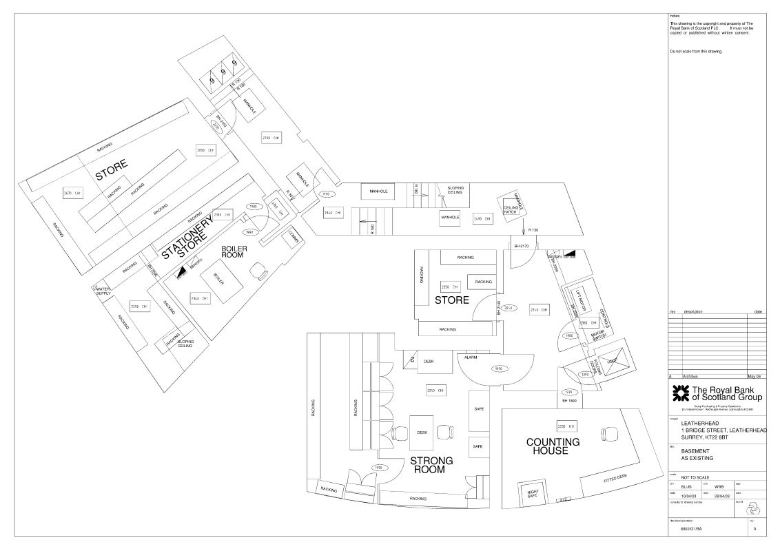
- Split level former bank measuring circa 2,000 sq ft
- GF: Entrance Hall & spacious lobby
- Upper GF: 4 x offices, 2 x W/C, staff kitchen, office with balcony overlooking main lobby
- Lower GF: Boiler room, 2 x storage rooms
- Basement: Cloak room, 2 x storage rooms, bank vault
- Benefits from a dumbwaiter from the basement to GF
- Scope for conversion to residential (STP)
- Suitable for potential alternative uses (STP)
- Ideal opportunity for owner occupiers, investors & developers
Contact Auction Estates on 0115 7844 600
Fees
A buyer's premium of £1,800 inc VAT (£720 inc VAT if the sale price is less than £10,000) is applicable to each lot purchased. The Seller may charge additional fees payable upon completion. If applicable, such fees are detailed within the Special Conditions of sale. Buyers are deemed to bid in full knowledge of this.
Guide Prices and Reserve Prices
Each property sold is subject to a Reserve Price. The Reserve Price, which is agreed between the seller and the auctioneer just prior to the auction, would ordinarily be within + or - 10% of the Guide Price. The Guide Price is issued solely as a guide so that a buyer can consider whether or not to pursue their interest. Both the Guide Price and the Reserve Price can be subject to change up to and including the day of the auction.
Conditions of Sale
The Conditions of Sale will be deposited at the offices of the auctioneers, Auction Estates, and Vendors Solicitors seven days prior to sale and the Purchaser shall be deemed to have knowledge of same whether inspected or not. Any questions relating to them must be raised prior to auction. Prospective Purchasers are advised to check with the auctioneers, Auction Estates, before the sale that the property is neither sold or withdrawn. The Purchaser will also be deemed to have read and understood the auction conduct notes printed within the sale catalogue.
Whilst Auction Estates make every effort to ensure the safety and security of viewers at properties, we have not carried out a detailed Health & Safety inspection of the properties in our auction and cannot therefore guarantee the safety and security of viewers. Prospective purchasers and bidders attend properties entirely at their own risk. Particular care should be taken when accessing cellars, attics, exterior grounds, outbuildings and boundaries. All non-conducted inspections of vacant sites should be made in daylight hours only and entry to such sites is entirely at the viewers' risk.
Freehold with vacant possession. Note upper floors have been sold off on Long Leaseholds comprising 4 flats each producing a ground rent of £100 pa
Refer to Legal Pack
