Park Farm Barn, Ash Lane, Etwall, Derby, DE65 6HT
£95,000+
Land
5
Key Features
- Attractive freehold residential development site boasting a generous 'L' shaped plot of circa 0.25 acres STP
- Located 8 miles from Derby City Centre in a picturesque location
- Plans to create a large 5 bedroom detached house STP
Part of the
14 October 2021
auction
The Nottingham Racecourse
at
2.30PM
Freehold residential development opportunity boasting a generous 'L' shaped plot of circa 0.25 acres (refer to legal pack) adjacent to a recently completed residential barn conversion scheme in a picturesque rural location close to Derby City Centre
- Residential development opportunity in Etwall STP
- Located circa 8 miles from Derby City Centre
- Excellent transport links close to A38 and A50
- Situated at the entrance of an affluent barn conversion scheme
- Existing farm structure still in situ
- Subject property boasts 'L' shaped plot of circa 0.25 acres
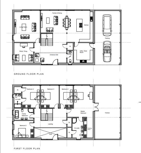
- Plans to create a large 5 bedroom detached house, as follows
- GF: Open plan hallway/kitchen/dining room/living room
- GF: Bi-fold doors onto expansive countryside
- GF: Living room, study, utility, garage parking for 2 x cars
- FF: 3 x double rooms, 1 x en-suite bedroom, family bathroom
- FF: En-suite master bedroom, walk in wardrobe and sun terrace
- Full tarmac driveway entrance already in situ leading to plot
- Ideal residential development subject to planning
- Adj barn conversion scheme home to 4 & 5 bed developments
- Completed adjacent scheme is already being occupied
- CGI's & red line - illustration purposes only (refer to legal pack)
At anytime from Ash Lane, Etwall
Fees
A buyer's premium of £1,440 inc VAT (£720 inc VAT if the sale price is less than £10,000) is applicable to each lot purchased. The Seller may charge additional fees payable upon completion. If applicable, such fees are detailed within the Special Conditions of sale. Buyers are deemed to bid in full knowledge of this.
Guide Prices and Reserve Prices
Each property sold is subject to a Reserve Price. The Reserve Price, which is agreed between the seller and the auctioneer just prior to the auction, would ordinarily be within + or - 10% of the Guide Price. The Guide Price is issued solely as a guide so that a buyer can consider whether or not to pursue their interest. Both the Guide Price and the Reserve Price can be subject to change up to and including the day of the auction.
Conditions of Sale
The Conditions of Sale will be deposited at the offices of the auctioneers and vendors solicitors/licensed conveyancers seven days prior to sale and the purchaser shall be deemed to have knowledge of same whether inspected or not. Any questions relating to them must be raised prior to 11.30 am. Prospective purchasers are advised to check with the auctioneers before the sale that the property is neither sold nor withdrawn.
The purchaser will also be deemed to have read and understood the auction conduct notes printed within the sale catalogue.
Freehold with vacant possession
Email: null
Telephone: 0115 908 4862
