Land between 63 & 65 Phoenix Street, Sutton-in-Ashfield, NG17 4HL
£160,000+
Land
Key Features
- Freehold parcel of residential development land
- Full planning for development of 6 x 1 bedroom flats and associated off street parking
- Ashfield District Council Planning Ref: V/2021/0240
Part of the
28 April 2022
auction
The Nottingham Racecourse
at
2.30PM
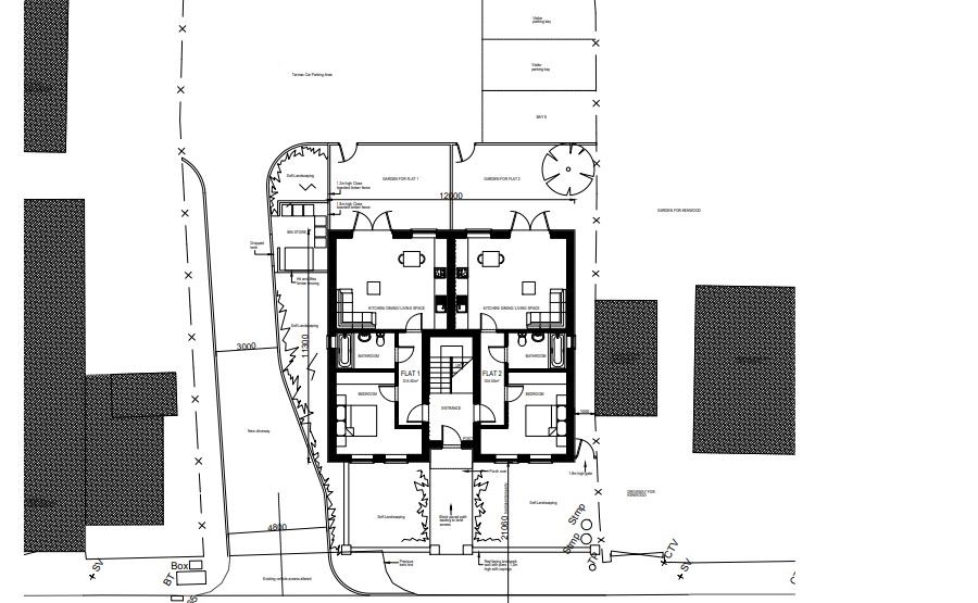
Freehold parcel of residential development land with full planning approved for the erection of a spacious 6 x 1 bedroom apartment block
- Freehold parcel of residential development land
- Well located close to Sutton and Mansfield town centres
- Short walk to Kings Mill Hospital & Amazon Distribution Hub
- Broadly square & flat site
- Accessed off Phoenix Street
- Full planning for erection of 6 x spacious 1 bed apartments
- Off street parking for 8 x cars
- Ground floor flats benefit from self-contained gardens
- Further green space/gardens proposed at rear of site
- Ashfield District Council Planning Ref: V/2021/0240
- Ideal opportunity for developers
At anytime from Phoenix Street
Fees
A buyer's premium of £1,440 inc VAT (£720 inc VAT if the sale price is less than £10,000) is applicable to each lot purchased. The Seller may charge additional fees payable upon completion. If applicable, such fees are detailed within the Special Conditions of sale. Buyers are deemed to bid in full knowledge of this.
Guide Prices and Reserve Prices
Each property sold is subject to a Reserve Price. The Reserve Price, which is agreed between the seller and the auctioneer just prior to the auction, would ordinarily be within + or - 10% of the Guide Price. The Guide Price is issued solely as a guide so that a buyer can consider whether or not to pursue their interest. Both the Guide Price and the Reserve Price can be subject to change up to and including the day of the auction.
Conditions of Sale
The Conditions of Sale will be deposited at the offices of the auctioneers and vendors solicitors/licensed conveyancers seven days prior to sale and the purchaser shall be deemed to have knowledge of same whether inspected or not. Any questions relating to them must be raised prior to 11.30 am. Prospective purchasers are advised to check with the auctioneers before the sale that the property is neither sold nor withdrawn.
The purchaser will also be deemed to have read and understood the auction conduct notes printed within the sale catalogue.
Freehold with vacant possession
Email: mm@bannerjones.co.uk
Telephone: 01623 6750800
