46b Florence Street, Hucknall, Nottingham, NG15 6EB
£15,000+
Residential
1
Key Features
- Freehold garage/workshop a short walk from Hucknall town centre
- Planning submitted for conversion to a 1 bedroom Maisonette
- Will benefit from off street parking and a garden
Part of the
28 April 2022
auction
The Nottingham Racecourse
at
2.30PM
Freehold garage/workshop situated at the end of a quiet cul-de-sac with planning permission submitted for a two storey maisonette, a short walk from Hucknall town centre
- Freehold garage/workshop
- Situated on the end of a quiet cul-de-sac
- Within walking distance of Hucknall town centre
- Planning permission submitted for conversion to residential
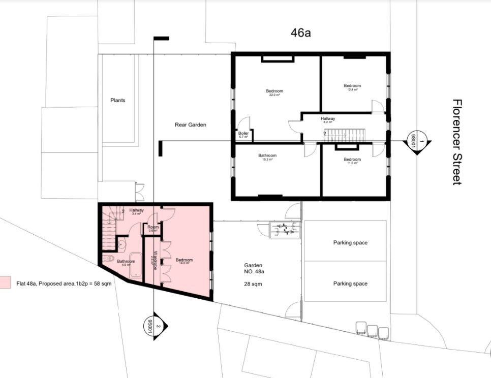
- Ashfield District Council Planning Ref: V/2022/0211
- Planning comprises conversion to a 1 bed maisonette
- GF: Entrance porch, open plan kitchen/diner/living room
- FF: Hallway, bathroom, bedroom
- Garden to the front
- On street and off street parking to the front
- Ideal opportunity for investors and builders
Please contact Auction Estates on 0115 7844 600
Fees
A buyer's premium of £1,440 inc VAT (£720 inc VAT if the sale price is less than £10,000) is applicable to each lot purchased. The Seller may charge additional fees payable upon completion. If applicable, such fees are detailed within the Special Conditions of sale. Buyers are deemed to bid in full knowledge of this.
Guide Prices and Reserve Prices
Each property sold is subject to a Reserve Price. The Reserve Price, which is agreed between the seller and the auctioneer just prior to the auction, would ordinarily be within + or - 10% of the Guide Price. The Guide Price is issued solely as a guide so that a buyer can consider whether or not to pursue their interest. Both the Guide Price and the Reserve Price can be subject to change up to and including the day of the auction.
Conditions of Sale
The Conditions of Sale will be deposited at the offices of the auctioneers and vendors solicitors/licensed conveyancers seven days prior to sale and the purchaser shall be deemed to have knowledge of same whether inspected or not. Any questions relating to them must be raised prior to 11.30 am. Prospective purchasers are advised to check with the auctioneers before the sale that the property is neither sold nor withdrawn.
The purchaser will also be deemed to have read and understood the auction conduct notes printed within the sale catalogue.
Freehold with vacant possession
Email: michaellee@leepomeranc.co.uk
Telephone: 0208 201 6299
