Unit 23 B/C, The Market Place Blackwood Shopping Centre, Blackwood, NP12 1AU
£170,000+
Commercial
Key Features
- Long Leasehold commercial property offered on a new 999 year lease at a peppercorn rent
- Situated in The Market Place Blackwood Shopping Centre fronting the car park (150 spaces)
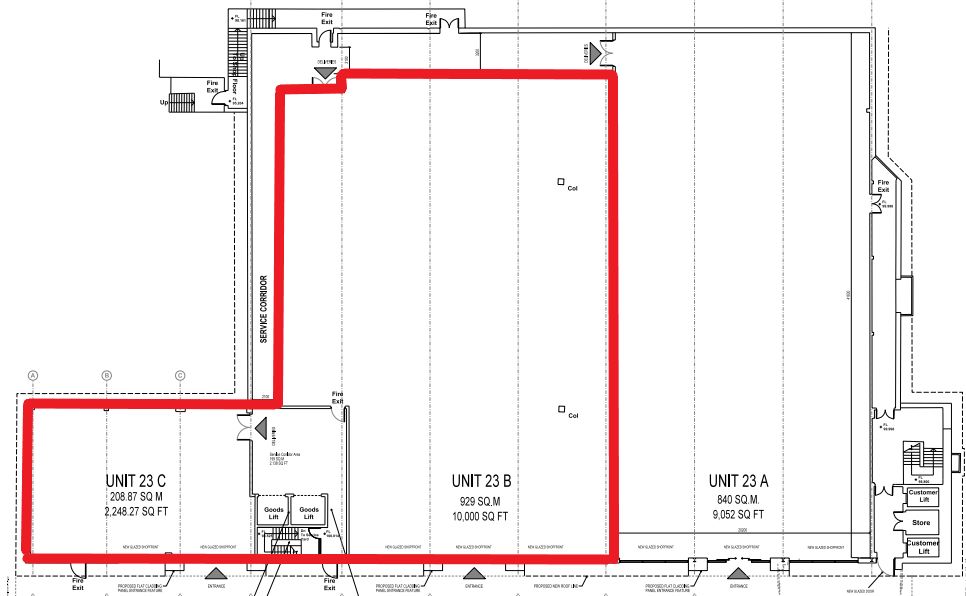
- Comprising a former supermarket measuring circa 13,848 sq ft
Part of the
20 October 2022
auction
The Nottingham Racecourse
at
2.30PM
Substantial commercial property in the heart of the Blackwood Shopping Centre comprising part of a former supermarket, extending to 13,848 sq ft accessed off the main car park (150 spaces) and adjacent to the Market Square
- Accessed from the main shopping centre car park (150 spaces)
- The Market Place comprises 22 retail units
- Adj to the active market square trading three times a week
- Comprising part of a former supermarket
- Total Floor area approximately 13,848 sq ft
- Open plan and providing an L-shaped configuration
- Floor plans are available on the website
- Potential for a wide range of uses (subject to planning)
- Adjacent to Snap Fitness Gym
- Market Place connects directly from the High Street
- Blackwood Central bus terminal is adjacent to market square
- Red line plan for illustration purposes
- See Legal Pack for Official Title Plan
Please contact Auction Estates on (0115) 7844600
Fees
A buyer's premium of £1,440 inc VAT (£720 inc VAT if the sale price is less than £10,000) is applicable to each lot purchased. The Seller may charge additional fees payable upon completion. If applicable, such fees are detailed within the Special Conditions of sale. Buyers are deemed to bid in full knowledge of this.
Guide Prices and Reserve Prices
Each property sold is subject to a Reserve Price. The Reserve Price, which is agreed between the seller and the auctioneer just prior to the auction, would ordinarily be within + or - 10% of the Guide Price. The Guide Price is issued solely as a guide so that a buyer can consider whether or not to pursue their interest. Both the Guide Price and the Reserve Price can be subject to change up to and including the day of the auction.
Conditions of Sale
The Conditions of Sale will be deposited at the offices of the auctioneers and vendors solicitors/licensed conveyancers seven days prior to sale and the purchaser shall be deemed to have knowledge of same whether inspected or not. Any questions relating to them must be raised prior to 11.30 am. Prospective purchasers are advised to check with the auctioneers before the sale that the property is neither sold nor withdrawn.
The purchaser will also be deemed to have read and understood the auction conduct notes printed within the sale catalogue.
Long Leasehold for a term of 999 years at a peppercorn rent.
Refer to Legal Pack
Email: lgriffiths@excellolaw.co.uk
Telephone: 0845 257 9449
