The Old Surgery, Church Street, Cropwell Bishop, Nottingham, NG12 3BY
£195,000+
Mixed Use
2
Key Features
- Investment property comprising two flats (let) and vacant office accommodation
- Total Current Rent Reserved £11,340 per annum
- Off-street parking for 3 cars to front
Part of the
28 February 2019
auction
Nottingham Racecourse
at
2.30PM
Investment property comprising two flats (let) with vacant office accommodation. Total Current Rent Reserved £11,340 per annum.
- In the heart of sought after Cropwell Bishop
- A short distance from A46/A52
- Diagonally opposite the Co-op convenience store
- Off-street parking for 3 cars to front
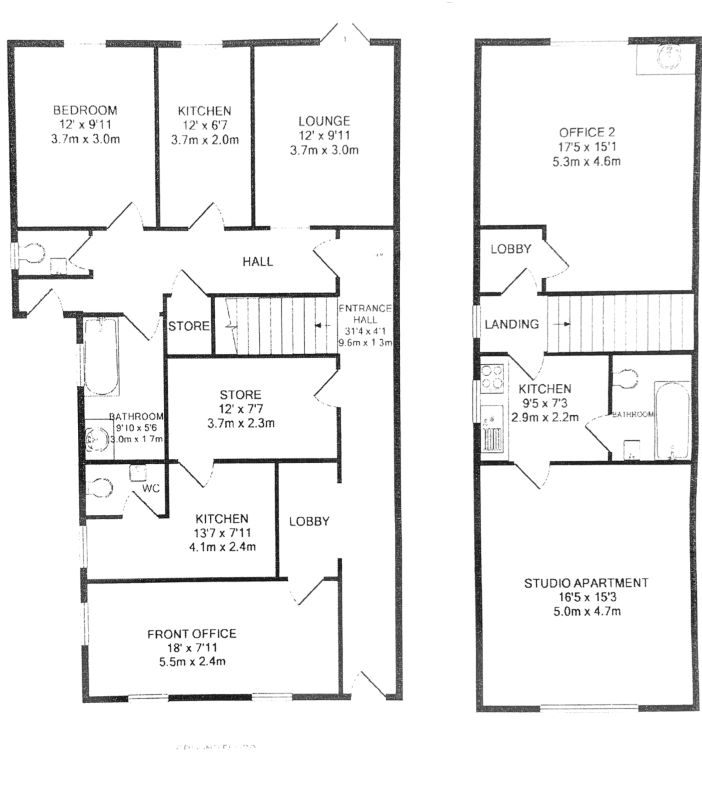
- Offices over ground & first floors (544 sq ft)
- 45B: Ground floor self contained flat (415 sq ft)
- 45A: First floor studio flat (285 sq ft)
- Scope to convert offices to flats (STP)
- Suit owner occupier or investor
Next viewing date: Friday 15th February at 4.30pm. Please arrive promptly for the viewing time.
Fees
A buyer's premium of £1,440 inc VAT (£720 inc VAT if the sale price is less than £10,000) is applicable to each lot purchased. The Seller may charge additional fees payable upon completion. If applicable, such fees are detailed within the Special Conditions of sale. Buyers are deemed to bid in full knowledge of this.
Guide Prices and Reserve Prices
Each property sold is subject to a Reserve Price. The Reserve Price, which is agreed between the seller and the auctioneer just prior to the auction, would ordinarily be within + or - 10% of the Guide Price. The Guide Price is issued solely as a guide so that a buyer can consider whether or not to pursue their interest. Both the Guide Price and the Reserve Price can be subject to change up to and including the day of the auction.
Conditions of Sale
The Conditions of Sale will be deposited at the offices of the auctioneers and vendors solicitors/licensed conveyancers seven days prior to sale and the purchaser shall be deemed to have knowledge of same whether inspected or not. Any questions relating to them must be raised prior to 11.30 am. Prospective purchasers are advised to check with the auctioneers before the sale that the property is neither sold nor withdrawn.
The purchaser will also be deemed to have read and understood the auction conduct notes printed within the sale catalogue.
Freehold, subject to the AST agreements of the two flats. Upon completion, the Vendor wishes to enter into a Tenancy at Will for the Offices. (Refer to legal pack)
E
Email: null
Telephone: 0115 9304 994
