1104 Daniel House, Trinity Road, Bootle, Merseyside, L20 3RG
£110,000
Residential
4
Key Features
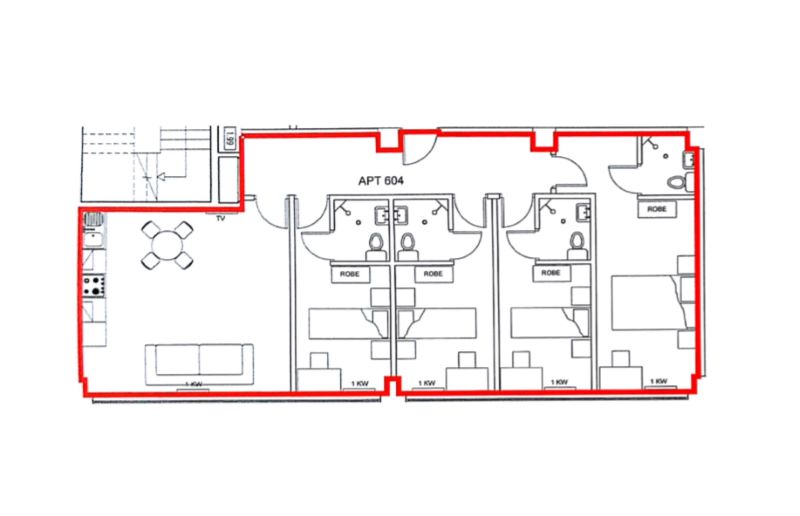
- Substantial 4 bedroom flat situated on 11th floor of Daniel House in Bootle
- Flat consists 4 x double bedrooms with en-suites
- Ideal opportunity for owner occupiers or investors
Part of the
17 April 2019
auction
Nottingham Racecourse
at
2.30PM
Substantial 4 bedroom flat located on the tenth floor of Daniel House
- Substantial 4 bedroom flat
- Situated on 11th floor of Daniel House in Bootle
- Located 3 miles North of Liverpool City Centre
- Secure communal entrance off Trinity Road
- Flat consists 4 x double bedrooms with en-suites
- Large open plan living room/kitchen/dinner
- Supplied with electric, water and mains drains
- Ideal opportunity for owner occupiers or investors
Please contact Auction Estates on 0115 7844 600
Fees
A buyer's premium of £1,440 inc VAT (£720 inc VAT if the sale price is less than £10,000) is applicable to each lot purchased. The Seller may charge additional fees payable upon completion. If applicable, such fees are detailed within the Special Conditions of sale. Buyers are deemed to bid in full knowledge of this.
Guide Prices and Reserve Prices
Each property sold is subject to a Reserve Price. The Reserve Price, which is agreed between the seller and the auctioneer just prior to the auction, would ordinarily be within + or - 10% of the Guide Price. The Guide Price is issued solely as a guide so that a buyer can consider whether or not to pursue their interest. Both the Guide Price and the Reserve Price can be subject to change up to and including the day of the auction.
Conditions of Sale
The Conditions of Sale will be deposited at the offices of the auctioneers and vendors solicitors/licensed conveyancers seven days prior to sale and the purchaser shall be deemed to have knowledge of same whether inspected or not. Any questions relating to them must be raised prior to 11.30 am. Prospective purchasers are advised to check with the auctioneers before the sale that the property is neither sold nor withdrawn.
The purchaser will also be deemed to have read and understood the auction conduct notes printed within the sale catalogue.
Long Leasehold flat for a term of 250 years from 1st February 2016 to be sold with vacant posession
TBC
Email: swee.ghai@taylor-rose.co.uk
Telephone: 0161 660 3333
