6-8 Portland Street, Newark, NG24 4XG
£85,000+
Residential
4
Key Features
- Freehold town centre conversion opportunity
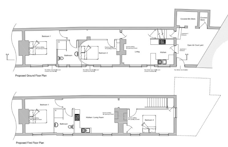
- Full planning for two spacious 2 bed apartments
- Planning ref: 18/01352/FUL
Part of the
15 August 2019
auction
Nottingham Racecourse
at
2.30PM
Freehold town centre conversion opportunity with planning consent for two spacious apartments.
- Two storey mid-terrace conversion opportunity
- Full planning for two spacious 2 bed apartments
- Planning ref:18/01352/FUL
- Local Authority: Newark & Sherwood District Council
- Architects floor plans available on planning website
- Close to ASDA supermarket & town centre amenities
- A rare town centre conversion opportunity
Please contact Auction Estates on 0115 7844 600
Fees
A buyer's premium of £1,440 inc VAT (£720 inc VAT if the sale price is less than £10,000) is applicable to each lot purchased. The Seller may charge additional fees payable upon completion. If applicable, such fees are detailed within the Special Conditions of sale. Buyers are deemed to bid in full knowledge of this.
Guide Prices and Reserve Prices
Each property sold is subject to a Reserve Price. The Reserve Price, which is agreed between the seller and the auctioneer just prior to the auction, would ordinarily be within + or - 10% of the Guide Price. The Guide Price is issued solely as a guide so that a buyer can consider whether or not to pursue their interest. Both the Guide Price and the Reserve Price can be subject to change up to and including the day of the auction.
Conditions of Sale
The Conditions of Sale will be deposited at the offices of the auctioneers and vendors solicitors/licensed conveyancers seven days prior to sale and the purchaser shall be deemed to have knowledge of same whether inspected or not. Any questions relating to them must be raised prior to 11.30 am. Prospective purchasers are advised to check with the auctioneers before the sale that the property is neither sold nor withdrawn.
The purchaser will also be deemed to have read and understood the auction conduct notes printed within the sale catalogue.
Freehold with vacant possession
Email: null
Telephone: 01246 231288
