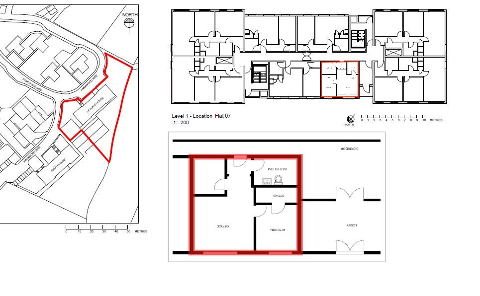
7 Parkwood Court, Parkwood Rise, Keighley, BD21 4RE
£10,000+
Residential
1
Key Features
- One bedroom flat within the Parkwood Court scheme
- Long leasehold for a term of 250 years from 01.01.17
- In need of full refurbishment throughout
Part of the
10 December 2020
auction
at
2.30PM
Long leasehold one bedroom ground floor flat within Parkwood Court to be offered with full vacant possession
- Long leasehold ground floor 1 bed flat
- Located within the Parkwood Court scheme
- Situated a short distance from Keighley town centre
- One bed flat with kitchen, living area and bathroom
- Flat is in need of full refurbishment throughout
- Benefits from water and electric
- To be offered with full vacant possession
- Long leasehold for a term of 250 years from 01.01.17
- Ground rent - £100 pa (please see legal pack)
- Ideal opportunity for owner occupiers, investors and as a flip
Please contact Auction Estates on 0115 7844 600
Fees
A buyer's premium of £1,440 inc VAT (£720 inc VAT if the sale price is less than £10,000) is applicable to each lot purchased. The Seller may charge additional fees payable upon completion. If applicable, such fees are detailed within the Special Conditions of sale. Buyers are deemed to bid in full knowledge of this.
Guide Prices and Reserve Prices
Each property sold is subject to a Reserve Price. The Reserve Price, which is agreed between the seller and the auctioneer just prior to the auction, would ordinarily be within + or - 10% of the Guide Price. The Guide Price is issued solely as a guide so that a buyer can consider whether or not to pursue their interest. Both the Guide Price and the Reserve Price can be subject to change up to and including the day of the auction.
Conditions of Sale
The Conditions of Sale will be deposited at the offices of the auctioneers and vendors solicitors/licensed conveyancers seven days prior to sale and the purchaser shall be deemed to have knowledge of same whether inspected or not. Any questions relating to them must be raised prior to 11.30 am. Prospective purchasers are advised to check with the auctioneers before the sale that the property is neither sold nor withdrawn.
The purchaser will also be deemed to have read and understood the auction conduct notes printed within the sale catalogue.
Long Leasehold for a term of 250 years from 01.01.17 subject to a ground rent of £100 pa (please see legal pack for details)
Email: mm@bannerjones.co.uk
Telephone: 01623 6750800
