Storage Building to rear of The Yew Tree, 2 Nottingham Road, Hucknall, Nottinghamshire, NG15 7QL
£35,000+
Residential
Key Features
- An opportunity to acquire a detached freehold property offering scope for conversion to residential (STP)
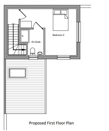
- Application in for conversion to a 2 bed C3 flat
- An ideal opportunity for builders and owner occupiers
Part of the
14 December 2023
auction
The Nottingham Racecourse
at
2.30PM
An opportunity to acquire a detached freehold property offering scope for conversion to residential (STP) with allocated off-street parking. Located to the rear of a new flat conversion scheme.
- Off Nottingham Rd at the corner of Beardall Street
- Close to Hucknall town centre & Tram Stop
- Located to the rear of a new flat conversion scheme
- Comprising a detached freehold property
- Part two storey & single storey beneath pitched roofs
- Application in for conversion to a 2 bed C3 flat
- Planning Application V/2023/0113
- Available to view on Ashfield DC planning portal
- https://planning.ashfield.gov.uk
- Potential for a range of alternative uses (STP)
- Includes one allocated off street parking space
- An ideal opportunity for builders and owner occupiers
Contact Auction Estates on 0115 7844600
Fees
A buyer's premium of £1,440 inc VAT (£720 inc VAT if the sale price is less than £10,000) is applicable to each lot purchased. The Seller may charge additional fees payable upon completion. If applicable, such fees are detailed within the Special Conditions of sale. Buyers are deemed to bid in full knowledge of this.
Guide Prices and Reserve Prices
Each property sold is subject to a Reserve Price. The Reserve Price, which is agreed between the seller and the auctioneer just prior to the auction, would ordinarily be within + or - 10% of the Guide Price. The Guide Price is issued solely as a guide so that a buyer can consider whether or not to pursue their interest. Both the Guide Price and the Reserve Price can be subject to change up to and including the day of the auction.
Conditions of Sale
The Conditions of Sale will be deposited at the offices of the auctioneers and vendors solicitors/licensed conveyancers seven days prior to sale and the purchaser shall be deemed to have knowledge of same whether inspected or not. Any questions relating to them must be raised prior to 11.30 am. Prospective purchasers are advised to check with the auctioneers before the sale that the property is neither sold nor withdrawn.
The purchaser will also be deemed to have read and understood the auction conduct notes printed within the sale catalogue.
Freehold with vacant possession
Refer to Legal Pack
Email: kiran.karra@brownejacobson.com
Telephone:
