The Old Piano School, Mount Lane, Newark, Nottinghamshire, NG24 1JT
£250,000
Residential
Key Features
- A residential development opportunity with Full Planning Permission for conversion of the existing buildings
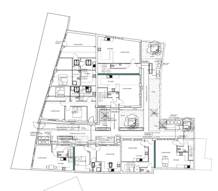
- Full planning for 5 x two storey townhouses and 3 x self-contained apartments.
- Offered For Sale on a Freehold basis
Part of the
17 April 2025
auction
Trent Bridge Cricket Ground
at
2.30PM
A residential development opportunity with Full Planning Permission for conversion of the existing buildings into 5 x two storey townhouses and 3 x self-contained apartments.
- Town centre location close to St Mary Magdalene Church
- Adj to Parsons Mount, a development of attractive apartments
- Close to the Market Place, shops, bars and restaurants
- Planning permission 24/00914/FUL (Newark & Sherwood DC)
- Full PP: 5 x Townhouses & 3 x self contained Apartments
- Comprising a range of Edwardian single & two storey buildings
- Gross floor area approximately 6,889 sq ft
- Conditional planning was granted 16th July 2024
- Reports available:
- Bat emergence survey
- Heritage Statement
- Historical Record Document
- Note: fire damage to Block C on the existing floor plans
Contact Auction Estates on (0115) 7844600
Fees
A buyer's premium of £1,800 inc VAT (£720 inc VAT if the sale price is less than £10,000) is applicable to each lot purchased. The Seller may charge additional fees payable upon completion. If applicable, such fees are detailed within the Special Conditions of sale. Buyers are deemed to bid in full knowledge of this.
Guide Prices and Reserve Prices
Each property sold is subject to a Reserve Price. The Reserve Price, which is agreed between the seller and the auctioneer just prior to the auction, would ordinarily be within + or - 10% of the Guide Price. The Guide Price is issued solely as a guide so that a buyer can consider whether or not to pursue their interest. Both the Guide Price and the Reserve Price can be subject to change up to and including the day of the auction.
Conditions of Sale
The Conditions of Sale will be deposited at the offices of the auctioneers and vendors solicitors/licensed conveyancers seven days prior to sale and the purchaser shall be deemed to have knowledge of same whether inspected or not. Any questions relating to them must be raised prior to 11.30 am. Prospective purchasers are advised to check with the auctioneers before the sale that the property is neither sold nor withdrawn.
The purchaser will also be deemed to have read and understood the auction conduct notes printed within the sale catalogue.
Freehold
Refer to Legal Pack
Email: egamage@paynegamage.com
Telephone: 01636 640 649
