Land adjacent to, 20 Oliver Close, Newark, NG24 1RS
£25,000+
Land
Key Features
- Rare residential development opportunity close to Newark town centre
- Full planning for the development of a 2 bedroom detached bungalow
- Situated on a Close of modern houses
Part of the
9 June 2021
auction
at
2.30PM
Freehold parcel of vacant land with full planning for a 2 bedroom detached bungalow close to Newark town centre
- Situated on a Close of modern houses
- A few minutes walk from Newark town centre
- Close to Barnby Road and Newark Academy
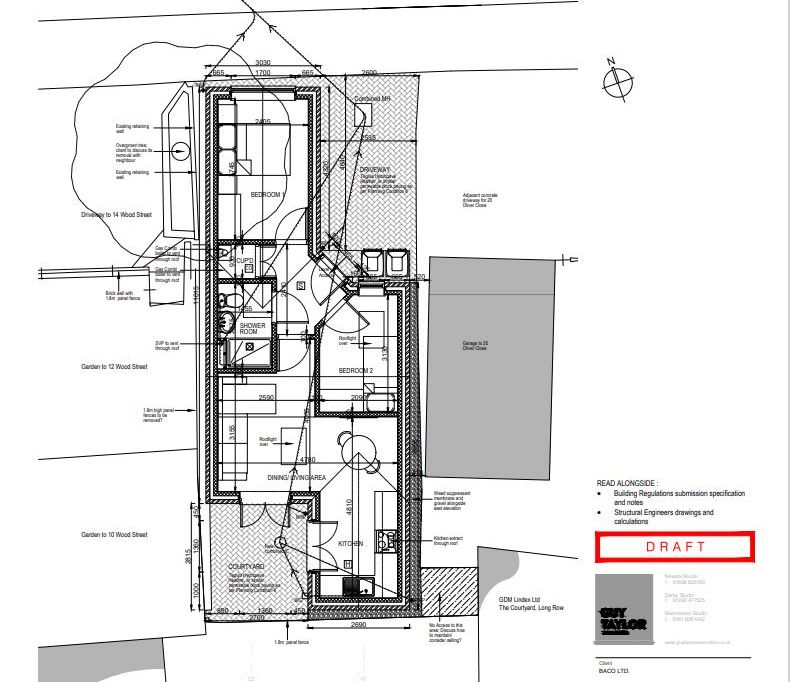
- Planning permission for a detached 2 bedroom bungalow
- Newark & Sherwood District Council reference 14/01291/FUL
- Proposed planning includes:
- Rear courtyard and off street parking
- Open plan Kitchen/diner, 2 x bedrooms & shower room
- Rare residential development opportunity within Newark
At anytime from Oliver Close
Fees
A buyer's premium of £1,440 inc VAT (£720 inc VAT if the sale price is less than £10,000) is applicable to each lot purchased. The Seller may charge additional fees payable upon completion. If applicable, such fees are detailed within the Special Conditions of sale. Buyers are deemed to bid in full knowledge of this.
Guide Prices and Reserve Prices
Each property sold is subject to a Reserve Price. The Reserve Price, which is agreed between the seller and the auctioneer just prior to the auction, would ordinarily be within + or - 10% of the Guide Price. The Guide Price is issued solely as a guide so that a buyer can consider whether or not to pursue their interest. Both the Guide Price and the Reserve Price can be subject to change up to and including the day of the auction.
Conditions of Sale
The Conditions of Sale will be deposited at the offices of the auctioneers and vendors solicitors/licensed conveyancers seven days prior to sale and the purchaser shall be deemed to have knowledge of same whether inspected or not. Any questions relating to them must be raised prior to 11.30 am. Prospective purchasers are advised to check with the auctioneers before the sale that the property is neither sold nor withdrawn.
The purchaser will also be deemed to have read and understood the auction conduct notes printed within the sale catalogue.
Freehold with vacant possession
Email: mm@bannerjones.co.uk
Telephone: 01623 6750800
