29 A, B, C Albert Street, Newark, Nottinghamshire, NG24 4BJ
£60,000 - £65,000
Commercial
Key Features
- Former retail unit with rear store and yard
- Ideal redevelopment opportunity (STP)
- Prominent location and deceptive site size
Part of the
13 December 2018
auction
Nottingham Racecourse
at
2.30PM
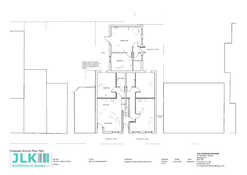
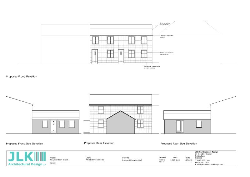
An opportunity to acquire a town centre parcel of land with potential for a residential flat scheme (STP)
- Currently a retail unit with rear store & yard
- Rectangular shaped shop to roadside with rear kitchen
- Area shaded blue for identification only
- Small nib of land in south east corner not included
- Site area approx. 2,403 sq ft
- Established residential location
- Potential demolition & new build development
- Plans for a 5 x 1 bedroom flat scheme (STP)
- Nearby amenities include Asda and Co-op food stores
- Access from Albert Street with enclosed rear yard
- Brick built outbuilding/store to rear of retail units
- Suitable for a variety of uses due to deceptive site sizes (STP)
- Planning authority: Newark & Sherwood District Council
Please contact Auction Estates on 0115 7844 600
Fees
A buyer's premium of £1,440 inc VAT (£720 inc VAT if the sale price is less than £10,000) is applicable to each lot purchased. The Seller may charge additional fees payable upon completion. If applicable, such fees are detailed within the Special Conditions of sale. Buyers are deemed to bid in full knowledge of this.
Guide Prices and Reserve Prices
Each property sold is subject to a Reserve Price. The Reserve Price, which is agreed between the seller and the auctioneer just prior to the auction, would ordinarily be within + or - 10% of the Guide Price. The Guide Price is issued solely as a guide so that a buyer can consider whether or not to pursue their interest. Both the Guide Price and the Reserve Price can be subject to change up to and including the day of the auction.
Conditions of Sale
The Conditions of Sale will be deposited at the offices of the auctioneers and vendors solicitors/licensed conveyancers seven days prior to sale and the purchaser shall be deemed to have knowledge of same whether inspected or not. Any questions relating to them must be raised prior to 11.30 am. Prospective purchasers are advised to check with the auctioneers before the sale that the property is neither sold nor withdrawn.
The purchaser will also be deemed to have read and understood the auction conduct notes printed within the sale catalogue.
Freehold with vacant possession
D
Email: null
Telephone: 0115 9304 994
