Former Scouts Hall, Forest Road, Annesley Woodhouse, Nottingham, NG17 9HA
£65,000+
Commercial
Key Features
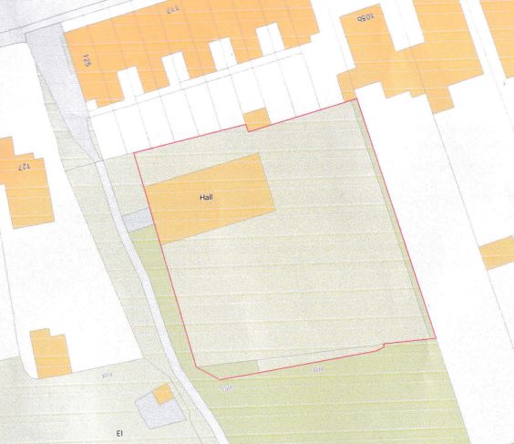
- A rare opportunity to acquire a former Scout Hall set on a broadly rectangular site of 0.35 acres
- Located in the heart of Annesley Woodhouse off Forest Road
- Ideal opportunity for investors, builders & owner occupiers
Part of the
25 April 2024
auction
The Nottingham Racecourse
at
2.30PM
A rare opportunity to acquire a former Scout Hall set on a broadly rectangular site of 0.35 acres in the heart of Annesley Village
- Located in the heart of Annesley Woodhouse off Forest Road
- Just off Junction 27 of the M1 motorway
- 10 miles from Nottingham City Centre
- Close to shops, schools and local amenities
- Former Scout Hall measuring approximately 2,000 square feet
- The Scout hall is set on a rectangular site of 0.35 acres
- Fully fenced around the entirety of the site
- Large double gated access for vehicles
- Comprising spacious Main Hall, kitchen, toilets & stores
- Loft access providing additional storage space
- Suitable for a range of alternative uses (STP)
- Possible scope for future redevelopment (STP)
- Ideal for a range of community uses (STP)
- Will require cosmetic improvement throughout
- Ideal opportunity for investors, builders & owner occupiers
- Red line plan is for illustration purposes only, refer to Title Plan (in Legal Pack)
Contact Auction Estates on 0115 7844 600
Fees
A buyer's premium of £1,800 inc VAT (£720 inc VAT if the sale price is less than £10,000) is applicable to each lot purchased. The Seller may charge additional fees payable upon completion. If applicable, such fees are detailed within the Special Conditions of sale. Buyers are deemed to bid in full knowledge of this.
Guide Prices and Reserve Prices
Each property sold is subject to a Reserve Price. The Reserve Price, which is agreed between the seller and the auctioneer just prior to the auction, would ordinarily be within + or - 10% of the Guide Price. The Guide Price is issued solely as a guide so that a buyer can consider whether or not to pursue their interest. Both the Guide Price and the Reserve Price can be subject to change up to and including the day of the auction.
Conditions of Sale
The Conditions of Sale will be deposited at the offices of the auctioneers and vendors solicitors/licensed conveyancers seven days prior to sale and the purchaser shall be deemed to have knowledge of same whether inspected or not. Any questions relating to them must be raised prior to 11.30 am. Prospective purchasers are advised to check with the auctioneers before the sale that the property is neither sold nor withdrawn.
The purchaser will also be deemed to have read and understood the auction conduct notes printed within the sale catalogue.
Freehold with vacant possession
Refer to Legal Pack
Email: alexarmstrong@roythornes.co.uk
Telephone:
