Land adjacent to 36 Mapperley Road, Mapperley, Nottingham, NG3 5AS
£45,000+
Land
2
Key Features
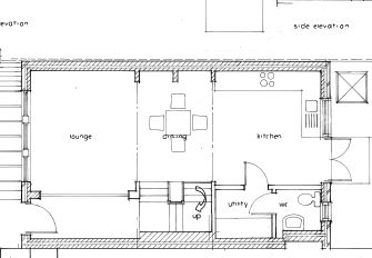
- An opportunity to acquire a freehold parcel of land with Full Planning Permission for a two storey two bedroom semi-detached house
- In the heart of Mapperley Park, a popular suburb of Nottingham
- An ideal opportunity for developers
Part of the
25 April 2024
auction
The Nottingham Racecourse
at
2.30PM
An opportunity to acquire a parcel of land with Full Planning Permission for a two storey, two bedroom semi-detached house in the sought after area of Mapperley Park
- Long Leasehold parcel of land with Full Planning Permission
- Full Planning Permission for a 2 bed semi-detached house
- Local Authority: Nottingham City Council
- Planning Reference: 22/01387/PFUL3
- All services connected: Drains, water, electric & gas
- In the heart of Mapperley Park, a popular suburb of Nottingham
- Approximately 1 mile from Nottingham City Centre
- Situated just off the busy Woodborough Road
- Excellent bus links to the City Centre & Surrounding areas
- Less than 1 mile from the popular Mapperley Top
- Close to a variety of Shops, restaurants, bars and leisure
- High levels of demand for new build housing in the area
- Close proximity to good primary and secondary schools
- An ideal opportunity for developers
Contact Auction Estates on 0115 7844 600
Fees
A buyer's premium of £1,800 inc VAT (£720 inc VAT if the sale price is less than £10,000) is applicable to each lot purchased. The Seller may charge additional fees payable upon completion. If applicable, such fees are detailed within the Special Conditions of sale. Buyers are deemed to bid in full knowledge of this.
Guide Prices and Reserve Prices
Each property sold is subject to a Reserve Price. The Reserve Price, which is agreed between the seller and the auctioneer just prior to the auction, would ordinarily be within + or - 10% of the Guide Price. The Guide Price is issued solely as a guide so that a buyer can consider whether or not to pursue their interest. Both the Guide Price and the Reserve Price can be subject to change up to and including the day of the auction.
Conditions of Sale
The Conditions of Sale will be deposited at the offices of the auctioneers and vendors solicitors/licensed conveyancers seven days prior to sale and the purchaser shall be deemed to have knowledge of same whether inspected or not. Any questions relating to them must be raised prior to 11.30 am. Prospective purchasers are advised to check with the auctioneers before the sale that the property is neither sold nor withdrawn.
The purchaser will also be deemed to have read and understood the auction conduct notes printed within the sale catalogue.
Offered For Sale with Long Leasehold with a term of 999 years commencing from 21st December 2022 with vacant possession
Refer to Legal Pack
